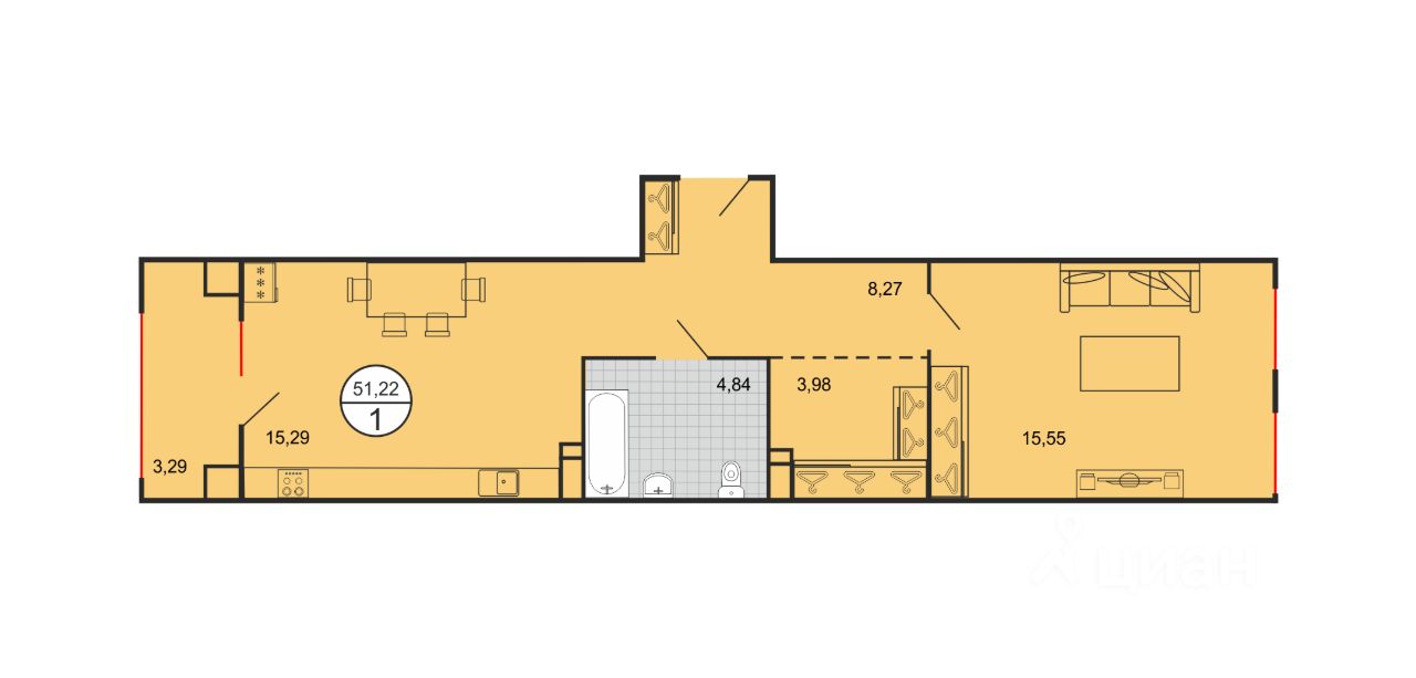
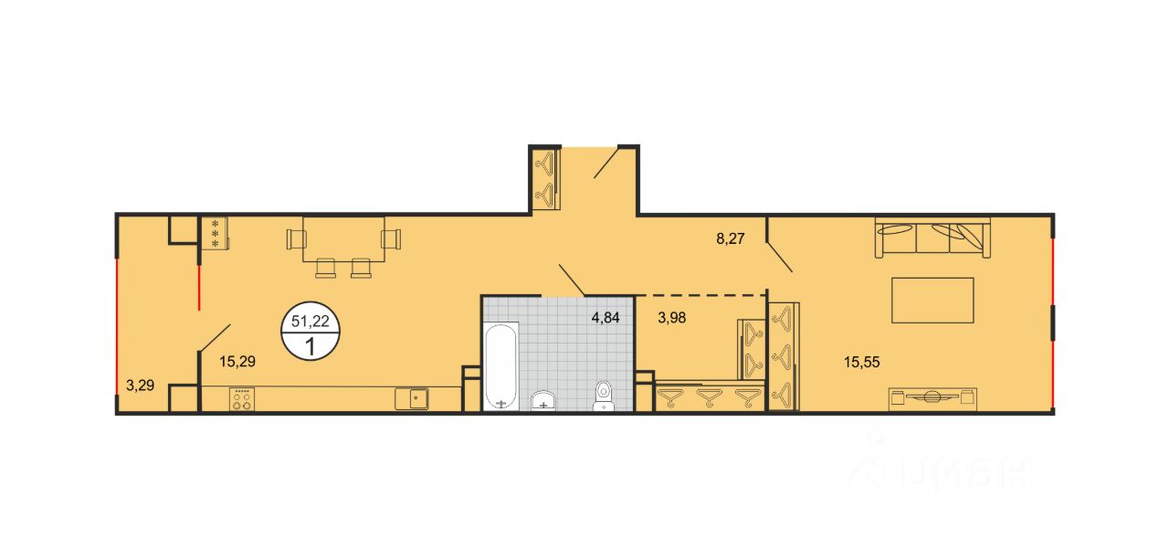
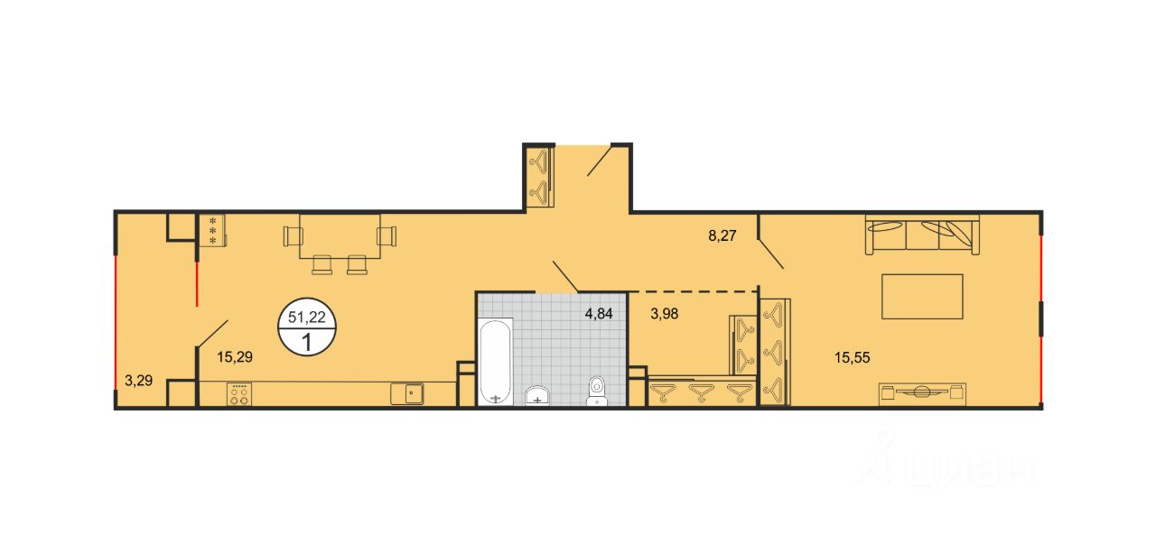
Продаётся 1-комнатная квартира в строящемся доме (Литера 4), срок сдачи: II-кв. 2026, общей площадью 51.22 кв.м., на 5 этаже. Новый жилой комплекс ''по пр. Чапаевский'' от застройщика ''ГК Стройград'' расположен по адресу: г. Ставрополь, Чапаевский проезд.