Если цена в объявлении изменится, мы сразу сообщим вам об этом на электронную почту.
Нажимая «Подписаться», вы соглашаетесь с правилами.
продам универсальное помещение, им С.В.Луценко, 11419 728 925 ₽
22 мая 2024
Дата публикации объявления
Обн. 1 мая
Дата обновления объявления
4
Количество просмотров (+ просмотры за сегодня)
17 582 ₽/м²
Параметры
Общая площадь1122,1 м2
Этаж1
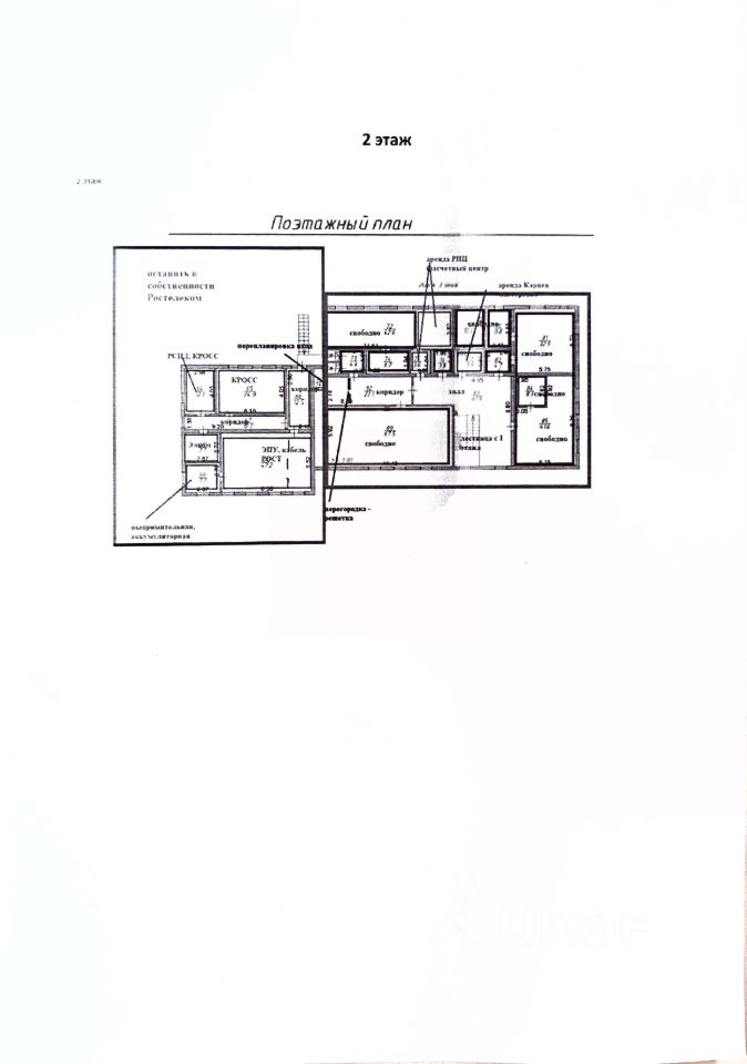
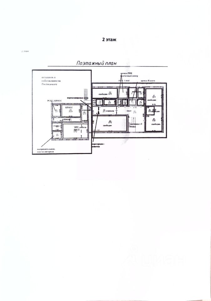
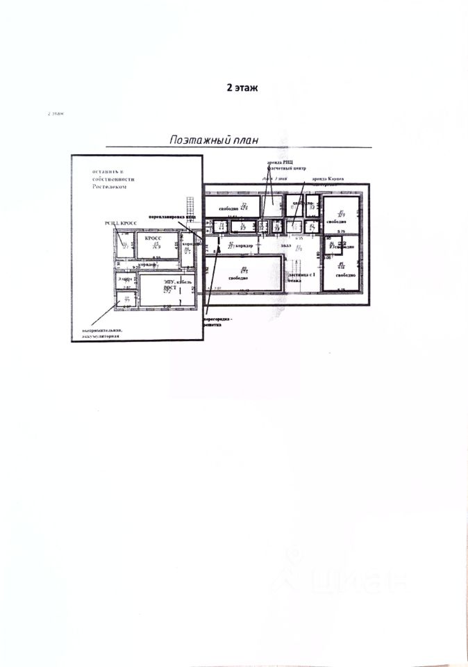
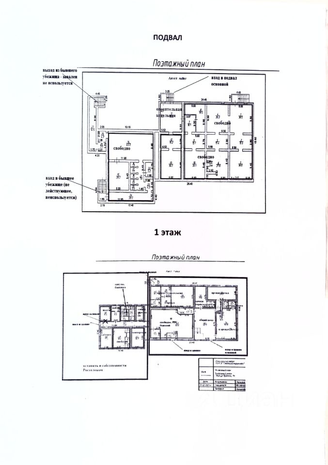
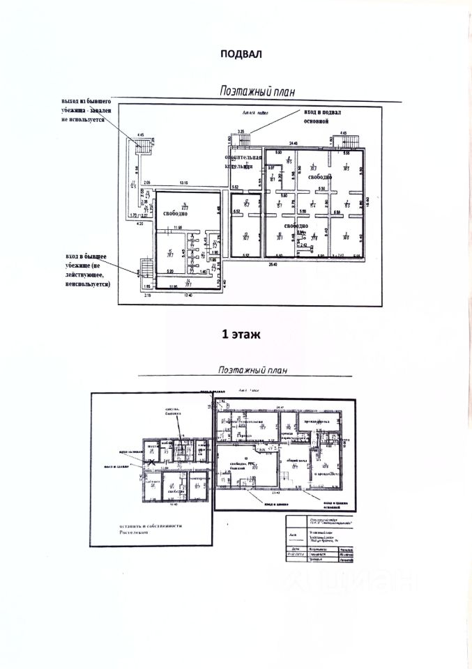
Продаются нежилые помещения, общая площадь 1 122,1 кв. м, (часть отдельно стоящего здания, этаж расположения - подвал, 1-2 этажи, тип входа - отдельный) кадастровый номер 26:29:120416:545, расположенные на земельном участке общей площадью 952 кв. м, кадастровый номер 26:29:120416:255. категория: земли населенных пунктов, разрешенное использование: для размещения здания АТС. Срок договора аренды до 2037г.
Коммуникации:теплоснабжение, водоснабжение (наличие ХВС), канализация. Электроснабжение с объектом не передается - покупатель самостоятельно заключает договор с ресурсоснабжающей организацией.
Гарантированный доход: в здании находятся действующие арендаторы с арендным потоком около 1 873 238 руб. в год с учетом НДС.
Продаются нежилые помещения, общая площадь 1 122,1 кв. м, (часть отдельно стоящего здания, этаж расположения - подвал, 1-2 этажи, тип входа - отдельный) кадастровый номер 26:29:120416:545, расположенные на земельном участке общей площадью 952 кв. м, кадастровый номер 26:29:120416:255. категория: земли населенных пунктов, разрешенное использование: для размещения здания АТС. Срок договора аренды до 2037г.
Коммуникации:теплоснабжение, водоснабжение (наличие ХВС), канализация. Электроснабжение с объектом не передается - покупатель самостоятельно заключает договор с ресурсоснабжающей организацией.
Гарантированный доход: в здании находятся действующие арендаторы с арендным потоком около 1 873 238 руб. в год с учетом НДС.
Ближайшее окружение представлено малоэтажными жилыми домами, объекты общественно-делового назначения. Хорошо развита инфраструктура. В районе расположения объекта находятся малоэтажные жилые дома, Администрация Юцкого Сельсовета, Участковая больница, поликлиника, аптеки, детский сад, Дворец культуры колхоза Пролетарская воля, магазины и др
Доступность объекта автомобильным транспортом без ограничений. Подъезд осуществляется по асфальтированной дороге с улицы Луценко.
Продажа от собственника ПАО ''Ростелеком''. Цена с учетом НДС. Подробная информация о процедуре приобретения по телефону, указанному в объявлении.