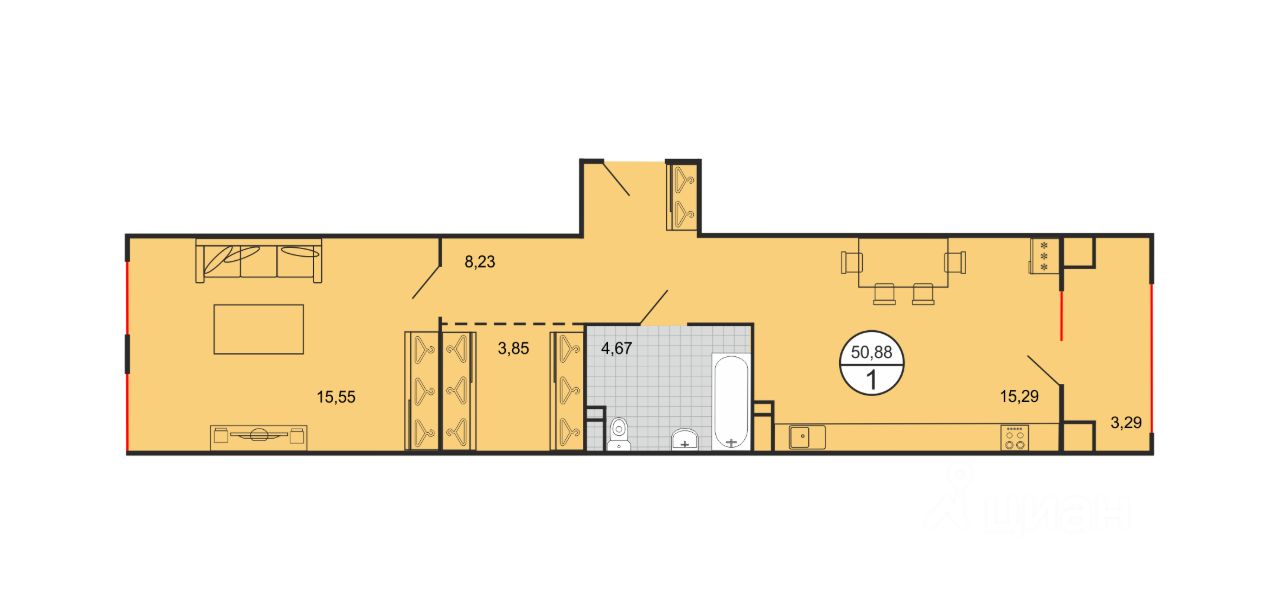
Продаётся 1-комнатная квартира в строящемся доме (Литера 3), срок сдачи: II-кв. 2026, общей площадью 50.88 кв.м., на 2 этаже. Новый жилой комплекс ''по пр. Чапаевский'' от застройщика ''ГК Стройград'' расположен по адресу: г. Ставрополь, Чапаевский проезд.