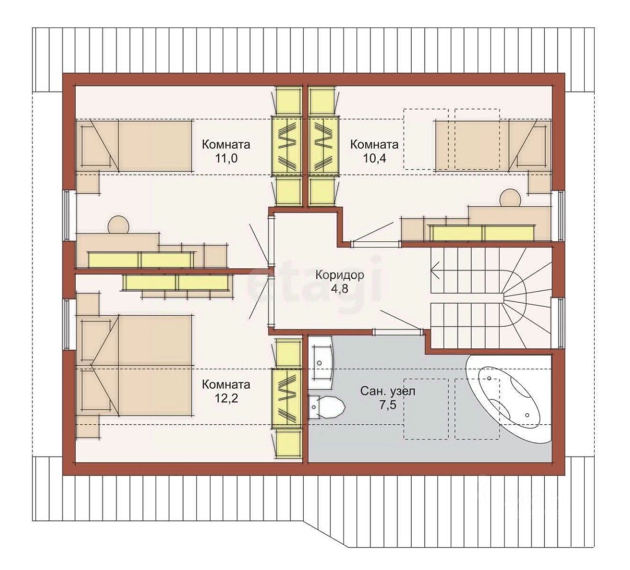
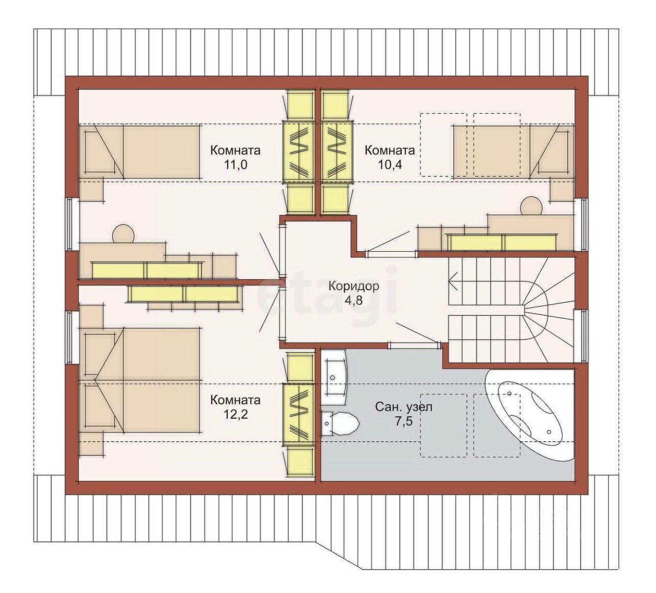
Продается ( 3/4 часть)прекрасного полутора этажного дома из четырёх уютных светлых уютных комнат.В доме сделан косметический ремонт.Теплые полы, везде стоит стекло пакет, две сплит системы,встроенная кухня, по желанию остается мебель.Также на территории имеется баня для семейного отдыха.Установлено видеонаблюдение,автоматизированые ворота для заезда во двор,имеется утепленный гараж, подвал.Также летняя зона отдыха, мангальная зона,навес.Посажены фруктовые и декоративные насаждения.По расположению 10 минут до центра езды на общественном транспорте.Рядом имеются магазины, школа,супермаркеты.Оплата только Наличные, также подходит мат. капитал.Дом ждет своего хозяина!!!
Код пользователя: 59031
Номер в базе: 7189221














