Если цена в объявлении изменится, мы сразу сообщим вам об этом на электронную почту.
Нажимая «Подписаться», вы соглашаетесь с правилами.
продам 1-к квартира6 402 500 ₽
17 сен
Дата публикации объявления
Обн. вчера
Дата обновления объявления
3
Количество просмотров (+ просмотры за сегодня)
Спецпредложение
Турбо x8
125 000 ₽/м²
Чистая продажа
Термин "Чистая продажа" означает, что в квартире никто не прописан или
есть куда выписаться и вывезти вещи. Это лучший вариант для покупателя.
Вероятность срыва сделки минимальна.
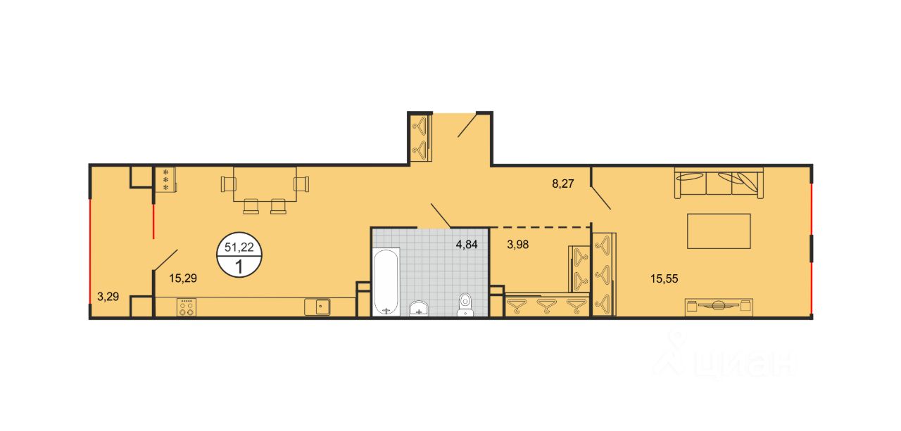
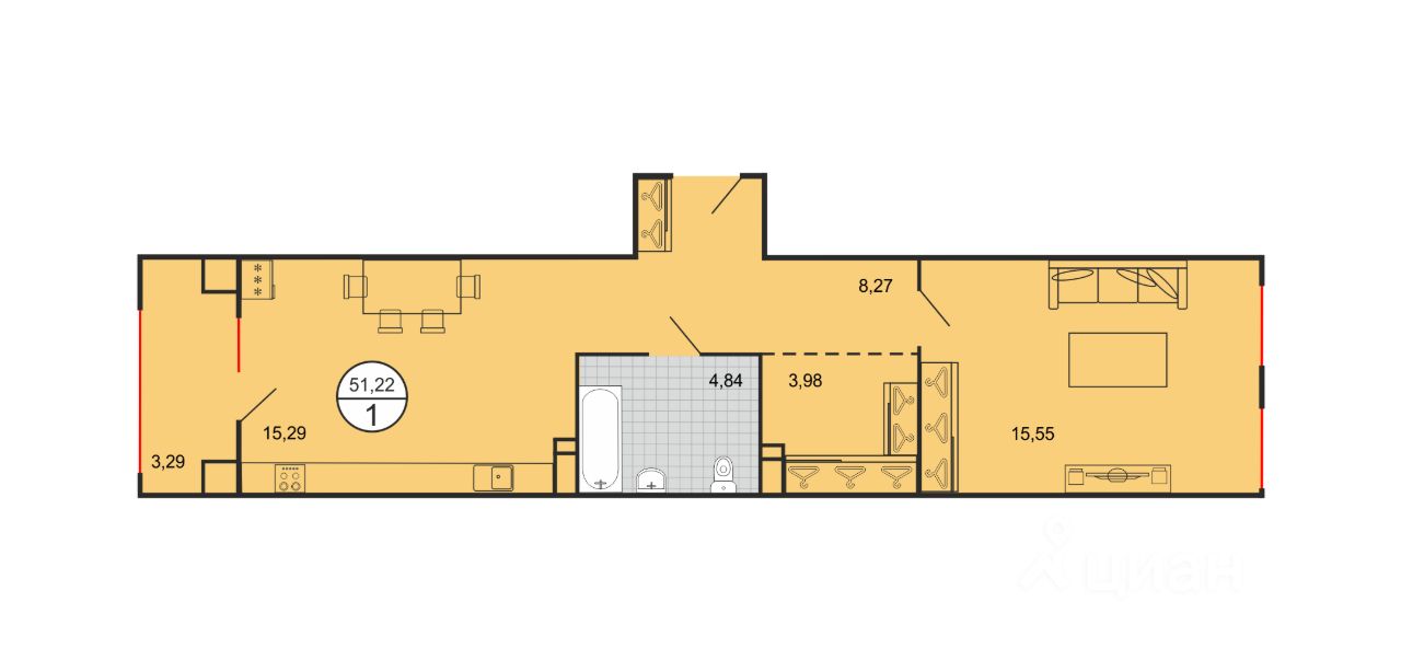
Квартира
Общая площадь51,22 м2
Жилая площадь15,6 м2
Тип собственностисвидетельство о праве собственности
Дом
Срок сдачи2 кв. 2026 г.
Этаж2 из 6
Материал домакирпич - монолит
ЖК Дыхание - это элегантный малоэтажный жилой комплекс с современными фасадами! Дома построены в современном стиле снаружи и досконально продуманы внутри! Богатое разнообразие планировочных решений призвано удовлетворить даже самого взыскательного покупателя! Садик, школа и торговый центр не просто рядом, а у Вас во дворе! Повышенная профессиональная шумоизоляция квартир, энергосберегающее остекление, многоуровневая парковка, индивидуальное отопление - все это доступно для жителей нашего комплекса! Жилой комплекс ''Дыхание'' воплощает идеальное сочетание природы, технологий и дизайна.
ЖК Дыхание - это элегантный малоэтажный жилой комплекс с современными фасадами! Дома построены в современном стиле снаружи и досконально продуманы внутри! Богатое разнообразие планировочных решений призвано удовлетворить даже самого взыскательного покупателя! Садик, школа и торговый центр не просто рядом, а у Вас во дворе! Повышенная профессиональная шумоизоляция квартир, энергосберегающее остекление, многоуровневая парковка, индивидуальное отопление - все это доступно для жителей нашего комплекса! Жилой комплекс ''Дыхание'' воплощает идеальное сочетание природы, технологий и дизайна. В одном из самых климатически благополучных районов Ставрополя мы создаем функциональную жилую среду, которая позволит максимально быстро и удобно решать бытовые вопросы, сохраняя ценное время для семьи и любимых занятий. Новейшая технология ''Умный Дом'' предлагает Вам новые возможности в управлении Вашим жилищем и комфорта, безопасности и энергоэффективности. Эта технология играет важную роль в повышении качества жизни и создания современной, интеллектуальной среды для Вас и Ваших соседей.