Если цена в объявлении изменится, мы сразу сообщим вам об этом на электронную почту.
Нажимая «Подписаться», вы соглашаетесь с правилами.
продам дом, Роз13 450 000 ₽
29 ноя
Дата публикации объявления
Обн. 29 апр
Дата обновления объявления
2
Количество просмотров (+ просмотры за сегодня)
77 254 ₽/м²
Чистая продажа
Термин "Чистая продажа" означает, что в квартире никто не прописан или
есть куда выписаться и вывезти вещи. Это лучший вариант для покупателя.
Вероятность срыва сделки минимальна.
Этажей2
Площадь участка6 соток
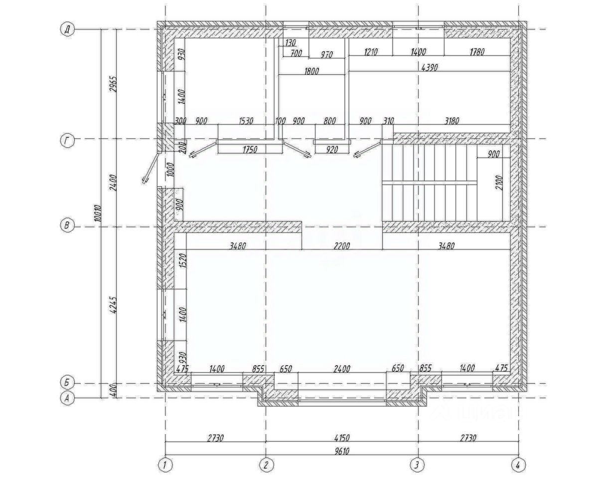
Общая площадь174,1 м2
ЭлектричествоЕсть
Газоснабжениецентральное
Продается Дом Вашей Мечты!!! В активно развивающейся части города города. Ровный участок правильной формы ( фасад 22,6 м) в собственности ,расположен на возвышенности, видовые характеристики на Эльбрус. Современный двухэдажный дом полностью готов к Вашему дизайнерскому ремонту и заселению. Все коммуникации подключены и зарегистрированы. Четыре спальни + кухня-гостиная 35 м2. Ленточный фундамент, монолит армированый 12 арматурой, три армопояса, ( бетон марки М250, высота цоколя 65см , гидроизоляция и утепленная отмостка), плита перекрытия высотой 20см, прокладка труб под канализацию и воду. Стена- керамический кирпич полуторный+утеплитель( каменная вата)+газопенобетон.
Продается Дом Вашей Мечты!!! В активно развивающейся части города города. Ровный участок правильной формы ( фасад 22,6 м) в собственности ,расположен на возвышенности, видовые характеристики на Эльбрус. Современный двухэдажный дом полностью готов к Вашему дизайнерскому ремонту и заселению. Все коммуникации подключены и зарегистрированы. Четыре спальни + кухня-гостиная 35 м2. Ленточный фундамент, монолит армированый 12 арматурой, три армопояса, ( бетон марки М250, высота цоколя 65см , гидроизоляция и утепленная отмостка), плита перекрытия высотой 20см, прокладка труб под канализацию и воду. Стена- керамический кирпич полуторный+утеплитель( каменная вата)+газопенобетон. Энергосберегающие окна, перекрытие между этажами монолит, крыша металлочерепица ( 0,45металл) утепленная( каменная вата 250) Сухая стяжка пола, машинная штукатурка по маякам. Септик самотечный трехкамерный . Теплые полы на обоих этажах. Дом может отапливаться как газом, так и электричеством. Преимущество расположения - на территории Татарки, что позволит огромную экономию в коммунальных платежах! Ограждение по всему периметру. Ворота с раздвижной системой. Документы готовы к сделке. Подходит Семейная ипотека и Сельская ипотека по 3%. Рассмотрим любую форму расчёта. Юридическое сопровождение сделки на любых этапах. Помощь в получении ипотеки. Гарантия безопасности сделки.