Если цена в объявлении изменится, мы сразу сообщим вам об этом на электронную почту.
Нажимая «Подписаться», вы соглашаетесь с правилами.
продам дом, Евгения Кунтуш8 000 000 ₽
15 дек
Дата публикации объявления
Обн. 16 апр
Дата обновления объявления
4
Количество просмотров (+ просмотры за сегодня)
Спецпредложение
Турбо x8
53 333 ₽/м²
Чистая продажа
Термин "Чистая продажа" означает, что в квартире никто не прописан или
есть куда выписаться и вывезти вещи. Это лучший вариант для покупателя.
Вероятность срыва сделки минимальна.
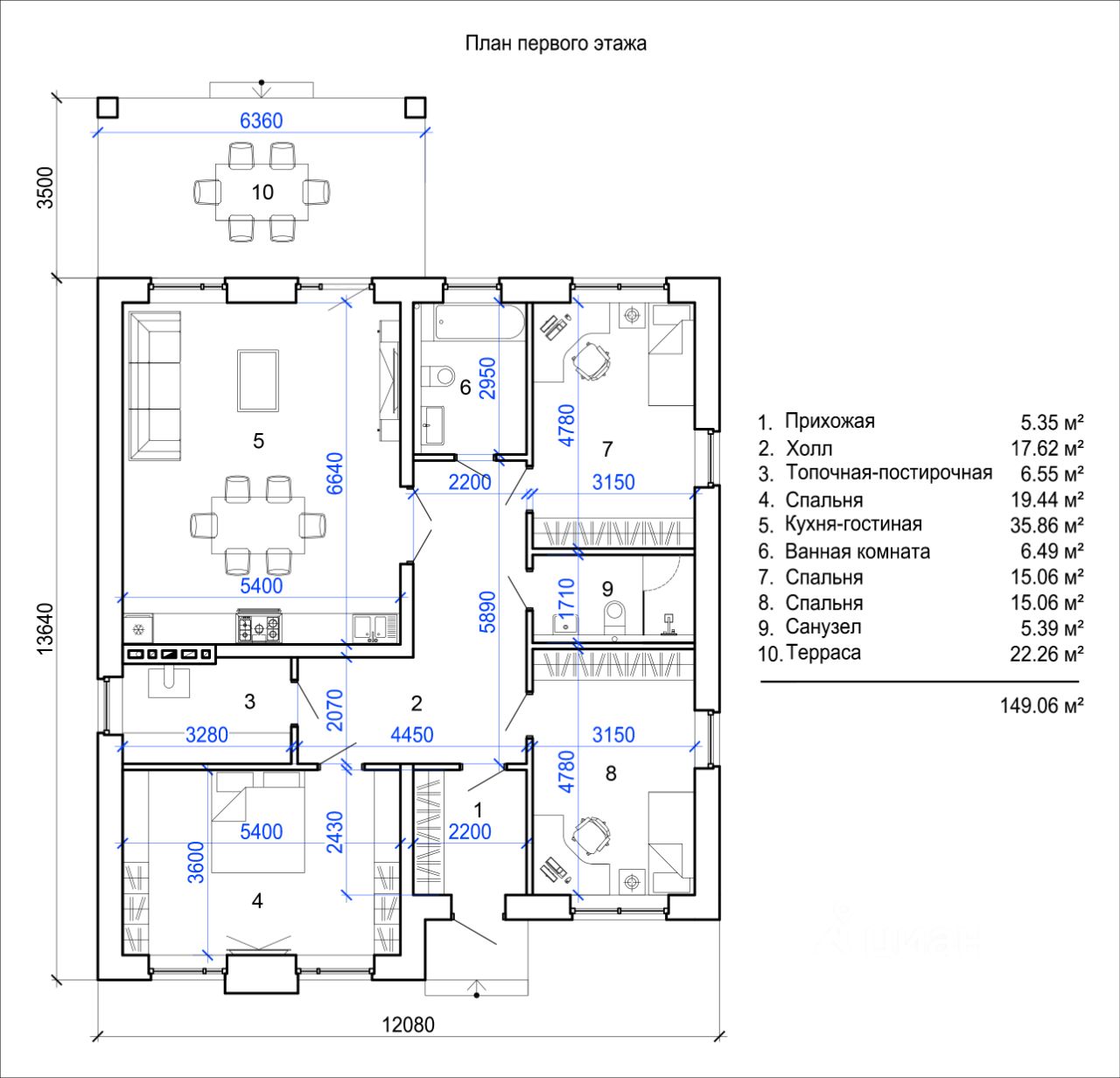
Этажей1
Площадь участка4 сотки
Общая площадь150 м2
Материал домакирпич
ЭлектричествоЕсть
Газоснабжениецентральное
Продается уютный, отдельно стоящий дом с интересной планировкой в прекрасном и развитом районе города Михайловска. В доме три просторные комнаты, кухня гостиная с выходом на крытую террасу, два раздельных с/у, прихожая, котельная. Все коммуникации центральные, индивидуальное отопление. Дом выполнен из качественного керамического кирпича ''Баварская кладка'' (белый цемент и белый песок), на 20 см. бетонной армированной монолитной плите, для утепления стен применен специально заказанный пенопласт 25 плотности толщиной 7см. и усиленный пеплоблок, установлены большие витражные окна с использованием 70 профиля с двойным стеклопакетом и тонировкой Солар, установлены теплые двери с терморазрывом изготовленные по ГОСТУ весом 121 кг.
Продается уютный, отдельно стоящий дом с интересной планировкой в прекрасном и развитом районе города Михайловска. В доме три просторные комнаты, кухня гостиная с выходом на крытую террасу, два раздельных с/у, прихожая, котельная. Все коммуникации центральные, индивидуальное отопление. Дом выполнен из качественного керамического кирпича ''Баварская кладка'' (белый цемент и белый песок), на 20 см. бетонной армированной монолитной плите, для утепления стен применен специально заказанный пенопласт 25 плотности толщиной 7см. и усиленный пеплоблок, установлены большие витражные окна с использованием 70 профиля с двойным стеклопакетом и тонировкой Солар, установлены теплые двери с терморазрывом изготовленные по ГОСТУ весом 121 кг., три слоя утеплителя на крыше, стены отштукатурены по маякам, потолок подшит гипсокартоном, высота потолков 3м. 10см., теплые полы по всему дому (в спальнях в том числе), котел Фуджиталь Антея с медным теплообменником и трехскоростным насосом, электропроводка по ГОСТу отдельными группами с разделёнными по зонам автоматами, для надежности конструкции сделан верхний сейсмопояс (армопояс), крыша металлочерепитца от компании Металл Профиль (оцинкованная сталь с полимерным покрытием). Дом подходит под покупку в ипотеку с использованием материнского капитала и семейную и военною ипотеку 8600000.