Дом, Зеленая Показать на карте
Юца
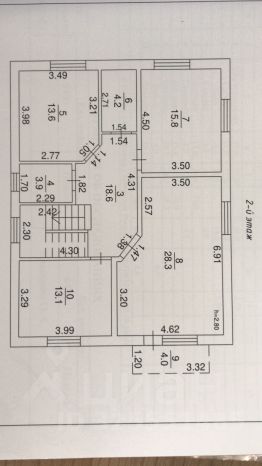
Продается новый шикарный двухэтажный дом в центре с.Юца.в ,общая площадь дома 180 кв м.В доме предусмотрены два этажа:1 этаж :кухня гостинная 60 кв,санузел совмещенный и прихожая.2 этаж :совместный санузел,гардеробная,холл, четыре большие спальни .Из каждой спальни открывается прекрасный вид на горы Машук и Бештау.В доме проведены все коммуникации,выполнена все черновая работа.Остается выполнить косметический ремонт и установить сантехнику.Фасад участка огорожен ,ворота в процессе установки.Рядом вся необходимая инфраструктура,школы,аптеки ,детсады ,магазины.Дом строился для себя,из высококачественных материалов.Разумный торг уместен_______________________АН ''АРИСТОКРАТ ГРУПП''- Гарантия юридической чистоты сделки от компании- Работа с сертификатами, ипотекой, мат. капиталом- Подбор интересующего объекта недвижимости и консультация по Вашим вопросам!
180 м2
2 этажа
Кирпич
- Показать контакты
- Добавить в избранное
180 м2
2 этажа
Кирпич
9 490 000
52 722 /м2
