Дом, Терский проезд, 66 Показать на карте
Ставрополь
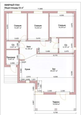
Смелое, архитектурное решение на 12 сотках, дом 250 кв м! Популярный, тихий район с уникальными видами на лес и город. Дом построен из современных материалов: монолитный каркас, по периметру ''Poromax-250'', алюминиевые, панорамные окна с раздвижными системами, система теплых полов... Грамотная и свободная планировка позволяет создать каждый этаж по своему вкусу и дизайнерскому стилю (общее пространство с перегородками или несколько изолированных комнат с с/у). В доме дренажные и ливневые системы скрытого монтажа, отсутствуют водостоки (вода уходит через трубы в дренаж). Во всем доме пред чистовая отделка, коммуникации все - центральные. Территория облагорожена, имеются дорожки, участки земли под ландшафтный дизайн, частично засеян газон. Можно построить на участке баню с бассейном, создать лаунж-зоны, зону барбекю и даже возвести гостевой дом. Достраивается навес на 2-4 автомобиля, есть хоз. помещение. Проект дома разрабатывался конкретно под этот видовой участок, есть записи на каждом этапе строительства. Подъезд к дому с разных уровней и с двух улиц. Дом прекрасно подойдет для большой семьи, ценящих комфорт, качество и месторасположение. А также позволит проживать двумя семьями, не стесняя друг друга. - Этот неповторимый поистине ЭКСКЛЮЗИВНЫЙ дом важно хотя бы один раз УВИДЕТЬ! Рядом школа, детский сад, магазины, аптеки, поликлиника, Нижний рынок, кафе, учебные заведения. В любую точку города 15 минут без пробок. Звоните, ответим на интересующие вопросы и организуем просмотр! [Номер объекта в нашей базе Z6104]
250 м2
3 этажа
Кирпич
- Показать контакты
- Добавить в избранное
250 м2
3 этажа
Кирпич
40 000 000
160 000 /м2
